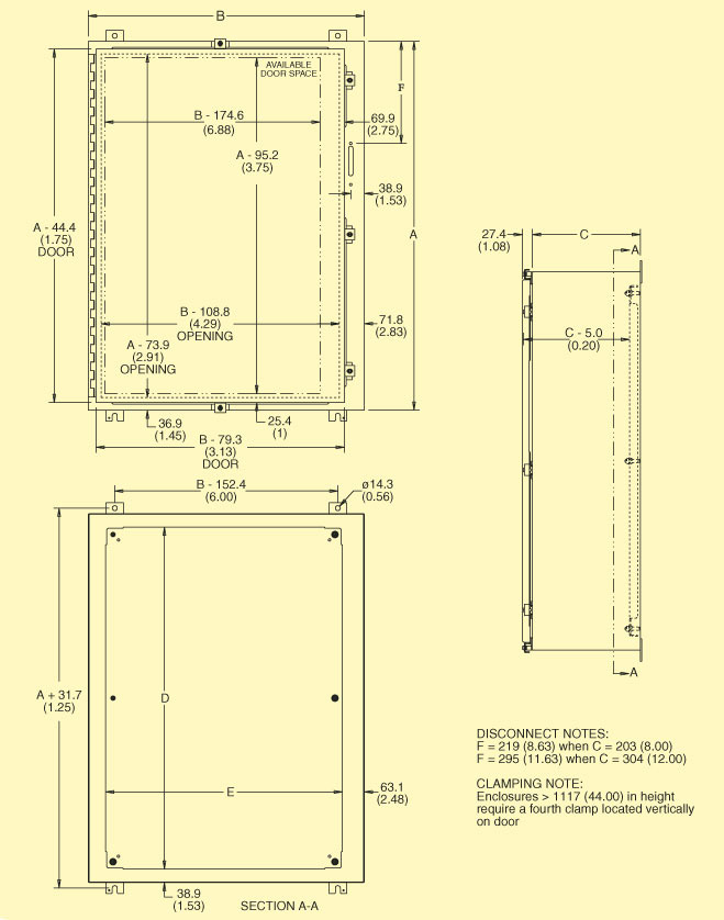
Application
SCE-HS SERIES DISCONNECT ENCLOSURE TYPE E
Designed to house most standard type
disconnects. For outdoor application a
drip shield is recommended.
Finish
ANSI-61 gray powder coating inside and
out over phosphatized surfaces. Optional
panels are powder coated white.
Industry Standards
NEMA Type 4, 12 & 13
UL Listed Type 4 & 12
CSA Type 4 & 12
IEC 60529 IP 66